Tn 97 - 25sr 1'' teu ins corp bsp
Cod produs: R97-25S 1"C
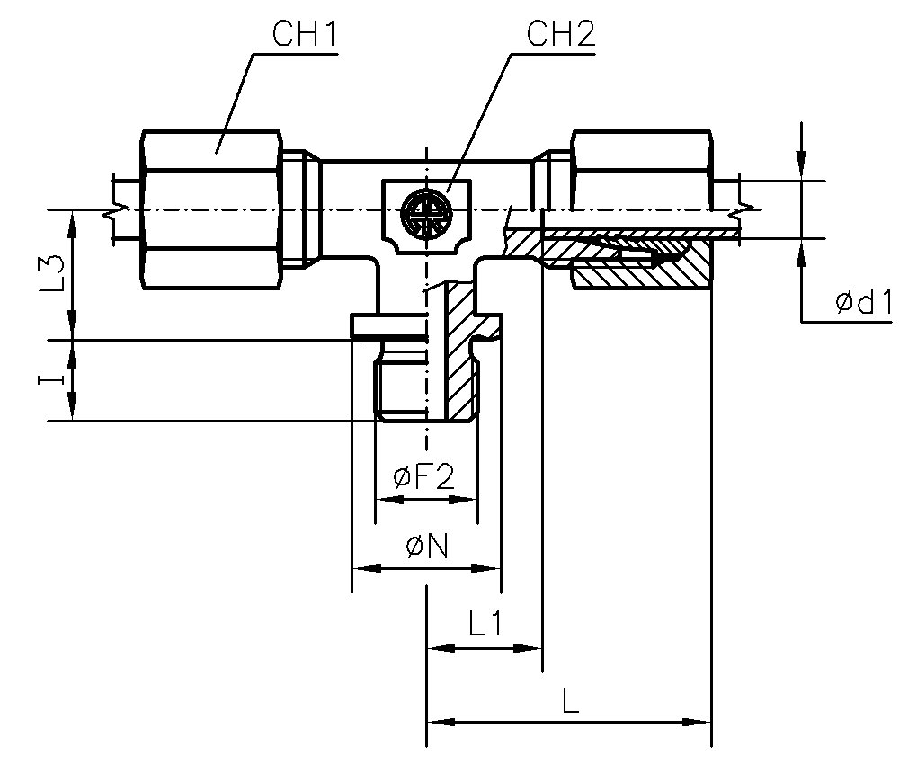
Caracteristici tehnice:
| PN | Diametru teava | Ød1 | F | CH1 | CH2 | ØN | I | L | L1 | L3 |
|---|---|---|---|---|---|---|---|---|---|---|
| 400 | 25 | 25 | 1''-11 | 46 | 36 | 39 | 18 | 54 | 31 | 30 |
| Tip Filet | BSPP |
| Conector F1 | Filet METRIC exterior cilindric |
| Etansare F1 | Con interior 24° |
| Conector F2 | Filet BSPP exterior cilindric |
| Etansare F2 | Forma B |
| Echipare | Corp (fara piulita si inel de taiere) |
| Standard | DIN 2353/ISO 8434-1 |
| Material | Otel |
| Suprafata | Galvanizare |